オープンレジデンシア南青山ウエストテラス 203号室
物件概要
物件名
オープンレジデンシア南青山ウエストテラス 203号室
所在地
東京都港区南青山2丁目19-2
賃料
45万円
管理費 / 共益費
2万円
敷金
45万円
礼金
45万円
仲介手数料
入居時期
即時
契約期間
交通
築年月
2013年8月
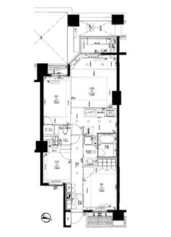
間取り
1LDK
所在階 / 階建
バルコニー面積
建物構造
SRC
広さ
66.26㎡
向き
東
現況
空室
設備仕様
キッチン
ガスコンロ対応、給湯、システムキッチン
バス・トイレ
バス・トイレ別、追焚機能、シャワー、温水洗浄便座、浴室乾燥機、洗濯機置場、洗面所独立
セキュリティ
オートロック、防犯カメラ、TVモニタ付インターホン
ペット
ペット相談
設備
不明コード(20001)、床暖房、都市ガス、エアコン、CSアンテナ、BSアンテナ、不明コード(22801)、バルコニー、不明コード(23601)、角部屋、光ファイバー、南向き、デザイナーズ、二人入居可、事務所使用可、不明コード(10902)、定期借家、保証人不要、仲介手数料不要
共用設備
エレベーター、宅配ボックス、24時間ゴミ出し可、トランクルーム
駐車場
駐輪場、駐車場空きあり
保険
備考
内覧予約受付中。即日対応・現地集合OK。事前申込みで物件を確保し、内覧後のキャンセルも可能です。キャンセル費用不要。契約金はクレジットカード決済対応。
周辺地図
他にも多数の物件を取り揃えております 。お気軽にお問い合わせください。
条件の近い物件
ピアース柿の木坂 2F号室
東京都目黒区柿の木坂3丁目3-6
ザ・パークハウス西新宿タワー60 25F号室
東京都新宿区西新宿5丁目5-1
パークコート渋谷ザタワー 313号室
東京都渋谷区宇田川町1-12
TheUpperResidences at Minami-a 101号室
東京都港区南青山5丁目4-19
THE ROPPONGI TOKYO CLUB RESIDE 18F号室
東京都港区六本木3丁目7-1
アピス西新宿 701号室
東京都新宿区西新宿3丁目
最近見た物件
麻布台ヒルズガーデンプラザレジデンス 606号室
東京都港区虎ノ門5丁目9-1
ワールドシティタワーズ アクアタワー 3002号室
東京都港区港南4丁目6-3



