ザ・パークハウス芝御成門 302号室
物件概要
物件名
ザ・パークハウス芝御成門 302号室
所在地
東京都港区新橋6丁目12-4
賃料
39万円
管理費 / 共益費
2万円
敷金
39万円
礼金
39万円
仲介手数料
入居時期
即時
契約期間
交通
築年月
2026年3月
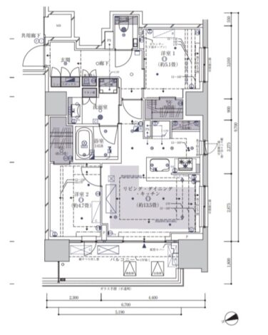
間取り
2LDK
所在階 / 階建
バルコニー面積
建物構造
SRC
広さ
60.48㎡
向き
北西
現況
空室
設備仕様
キッチン
ガスコンロ対応、給湯、システムキッチン
バス・トイレ
バス・トイレ別、シャワー、温水洗浄便座、浴室乾燥機、洗面所独立
セキュリティ
オートロック、防犯カメラ
ペット
ペット相談
設備
都市ガス、エアコン、CSアンテナ、BSアンテナ、CATV、不明コード(22801)、不明コード(23301)、不明コード(23401)、インターネット対応、角部屋、光ファイバー、南向き、最上階、デザイナーズ、不明コード(26301)、二人入居可、事務所使用可、仲介手数料不要
共用設備
エレベーター、宅配ボックス、24時間ゴミ出し可、トランクルーム
駐車場
駐輪場、駐車場空きあり
保険
備考
内覧予約受付中。即日対応・現地集合OK。事前申込みで物件を確保し、内覧後のキャンセルも可能です。キャンセル費用不要。契約金はクレジットカード決済対応。
周辺地図
他にも多数の物件を取り揃えております 。お気軽にお問い合わせください。
条件の近い物件
WORLD TOWER RESIDENCE(ワールドタワーレ 2010号室
東京都港区浜松町2丁目3-9
プラウド二子玉川 902号室
東京都世田谷区玉川1丁目9-5
クオリア恵比寿パークフロント 702号室
東京都渋谷区広尾1丁目15-3
TheUpperResidences at Minami-a 101号室
東京都港区南青山5丁目4-19
赤坂タワーレジデンス Top of the Hill 2404号室
東京都港区赤坂2丁目17-50
ブランズタワー芝浦 12F号室
東京都港区芝浦2丁目9-1
最近見た物件
赤坂溜池タワーレジデンス 2504号室
東京都港区赤坂2丁目17-1
コンシェリア西新宿 TOWER’S WEST 3908号室
東京都新宿区西新宿6丁目20-7
パークアクシス渋谷桜丘サウス 1101号室
東京都渋谷区桜丘町8-11



