パークハウス中目黒 505号室
物件概要
物件名
パークハウス中目黒 505号室
所在地
東京都目黒区中目黒3丁目6-19
賃料
62万円
管理費 / 共益費
0円
敷金
62万円
礼金
62万円
仲介手数料
入居時期
即時
契約期間
交通
築年月
2008年9月
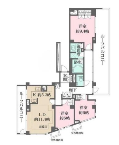
間取り
3LDK
所在階 / 階建
バルコニー面積
建物構造
SRC
広さ
97.29㎡
向き
南東
現況
空室
設備仕様
キッチン
ガスコンロ対応、給湯、システムキッチン
バス・トイレ
バス・トイレ別、シャワー、温水洗浄便座、浴室乾燥機
セキュリティ
オートロック、防犯カメラ、TVモニタ付インターホン
ペット
設備
都市ガス、エアコン、CSアンテナ、BSアンテナ、不明コード(22801)、バルコニー、不明コード(23601)、インターネット対応、角部屋、光ファイバー、デザイナーズ、不明コード(26301)、二人入居可、事務所使用可、不明コード(10902)、保証人不要、仲介手数料不要
共用設備
エレベーター、宅配ボックス、トランクルーム
駐車場
駐輪場、駐車場空きあり
保険
備考
内覧予約受付中。即日対応・現地集合OK。事前申込みで物件を確保し、内覧後のキャンセルも可能です。キャンセル費用不要。契約金はクレジットカード決済対応。
周辺地図
他にも多数の物件を取り揃えております 。お気軽にお問い合わせください。
条件の近い物件
シティハウス目黒ザ・グランド 705号室
東京都目黒区目黒2丁目11-15
パークコート ザ・三番町ハウス 903号室
東京都千代田区三番町28-3
プラウドタワー芝浦 1606号室
東京都港区芝浦4丁目15-1
グランドヒルズ三軒茶屋ヒルトップガーデン 9F号室
東京都世田谷区太子堂3丁目37-1
WORLD TOWER RESIDENCE(ワールドタワーレ 2010号室
東京都港区浜松町2丁目3-9
ワールドシティタワーズ アクアタワー 16F号室
東京都港区港南4丁目6-4 A4



