レグノ・セレーノ 614号室
物件概要
物件名
レグノ・セレーノ 614号室
所在地
東京都新宿区北新宿3丁目2-1
賃料
23.9万円
管理費 / 共益費
1万円
敷金
0円
礼金
23.9万円
仲介手数料
入居時期
相談
契約期間
交通
築年月
2008年4月
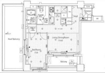
間取り
1その他
所在階 / 階建
バルコニー面積
建物構造
SRC
広さ
52.08㎡
向き
西
現況
居住中
設備仕様
キッチン
ガスコンロ対応、給湯、システムキッチン
バス・トイレ
バス・トイレ別、シャワー、温水洗浄便座、浴室乾燥機
セキュリティ
オートロック、防犯カメラ、TVモニタ付インターホン
ペット
設備
床暖房、都市ガス、エアコン、CSアンテナ、BSアンテナ、CATV、不明コード(22801)、バルコニー、不明コード(23601)、角部屋、光ファイバー、デザイナーズ、二人入居可、事務所使用可、保証人不要、仲介手数料不要
共用設備
エレベーター、宅配ボックス、トランクルーム
駐車場
駐輪場、バイク置き場、駐車場空きあり
保険
備考
内覧予約受付中。即日対応・現地集合OK。事前申込みで物件を確保し、内覧後のキャンセルも可能です。キャンセル費用不要。契約金はクレジットカード決済対応。
周辺地図
他にも多数の物件を取り揃えております 。お気軽にお問い合わせください。
条件の近い物件
パークハウスオー・タワー 1401号室
東京都品川区大崎3丁目
虎ノ門ヒルズ レジデンシャルタワー 1314号室
東京都港区愛宕1丁目1-1
プライア渋谷 1107号室
東京都渋谷区渋谷3丁目6-4
二子玉川ライズタワー&レジデンス タワーイースト 4201号室
東京都世田谷区玉川1丁目15-2
プラウドタワー目黒MARC 7F号室
東京都品川区西五反田3丁目3-2
ザ・パークハウス西新宿タワー60 4207号室
東京都新宿区西新宿5丁目5-1



