ヴィンテージ中目黒 403号室
物件概要
物件名
ヴィンテージ中目黒 403号室
所在地
東京都目黒区上目黒3丁目6-21
賃料
28万円
管理費 / 共益費
0円
敷金
28万円
礼金
28万円
仲介手数料
入居時期
期日指定
契約期間
交通
築年月
1996年12月
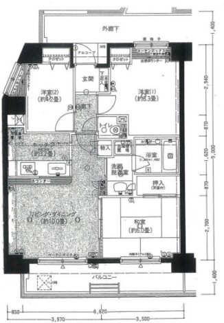
間取り
3LDK
所在階 / 階建
バルコニー面積
建物構造
PC
広さ
65.24㎡
向き
南東
現況
空室
設備仕様
キッチン
ガスコンロ対応、給湯、システムキッチン
バス・トイレ
バス・トイレ別、シャワー、温水洗浄便座、浴室乾燥機
セキュリティ
オートロック、防犯カメラ、TVモニタ付インターホン
ペット
設備
不明コード(21001)、都市ガス、エアコン、CSアンテナ、BSアンテナ、CATV、不明コード(22801)、不明コード(23301)、バルコニー、角部屋、光ファイバー、デザイナーズ、二人入居可、事務所使用可、定期借家、仲介手数料不要
共用設備
エレベーター、宅配ボックス、24時間ゴミ出し可、トランクルーム
駐車場
駐輪場、駐車場空きあり
保険
備考
内覧予約受付中。即日対応・現地集合OK。事前申込みで物件を確保し、内覧後のキャンセルも可能です。キャンセル費用不要。契約金はクレジットカード決済対応。
周辺地図
他にも多数の物件を取り揃えております 。お気軽にお問い合わせください。
条件の近い物件
プラウドタワー芝浦 1502号室
東京都港区芝浦4丁目15-1
ザ・パークハウス新宿御苑 13F号室
東京都新宿区新宿2丁目1-15
シティタワー大崎ステーションフロント 2504号室
東京都品川区大崎5丁目9-9
ザ・パークハウス西新宿タワー60 2201号室
東京都新宿区西新宿5丁目5-1
パークハウス西早稲田アーバンス 304号室
東京都新宿区西早稲田2丁目15-8
芝浦アイランド ケープタワー 412号室
東京都港区芝浦4丁目19-1



