広尾シティタワー 201号室
物件概要
物件名
広尾シティタワー 201号室
所在地
東京都渋谷区広尾1丁目7-21
賃料
29.8万円
管理費 / 共益費
1.5万円
敷金
29.8万円
礼金
29.8万円
仲介手数料
入居時期
即時
契約期間
交通
築年月
2000年7月
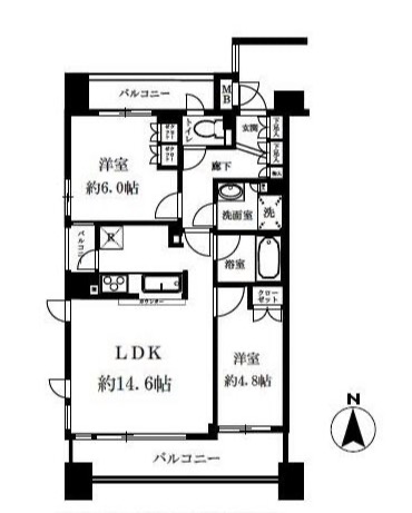
間取り
2LDK
所在階 / 階建
バルコニー面積
建物構造
PC
広さ
57.44㎡
向き
南
現況
空室
設備仕様
キッチン
ガスコンロ対応、給湯、システムキッチン
バス・トイレ
バス・トイレ別、追焚機能、シャワー、温水洗浄便座、浴室乾燥機、洗濯機置場、洗面所独立
セキュリティ
オートロック、防犯カメラ
ペット
設備
不明コード(20001)、不明コード(20601)、不明コード(21001)、都市ガス、エアコン、CSアンテナ、BSアンテナ、CATV、不明コード(22801)、不明コード(23301)、バルコニー、不明コード(23601)、角部屋、光ファイバー、デザイナーズ、二人入居可、事務所使用可、不明コード(27401)、不明コード(27501)、不明コード(10001)、定期借家、仲介手数料不要
共用設備
エレベーター、宅配ボックス、24時間ゴミ出し可、トランクルーム
駐車場
駐輪場、駐車場空きあり
保険
備考
内覧予約受付中。即日対応・現地集合OK。事前申込みで物件を確保し、内覧後のキャンセルも可能です。キャンセル費用不要。契約金はクレジットカード決済対応。
周辺地図
他にも多数の物件を取り揃えております 。お気軽にお問い合わせください。
条件の近い物件
ゲートシティ大崎サウスパークタワー 402号室
東京都品川区大崎1丁目14-3
コンシェリア西新宿 TOWER’S WEST 914号室
東京都新宿区西新宿6丁目20-7
赤坂タワーレジデンス Top of the Hill 2404号室
東京都港区赤坂2丁目17-50
ワールドシティタワーズ ブリーズタワー 39F号室
東京都港区港南4丁目6-8
品川Vタワー 509号室
東京都港区港南2丁目16-7 タワー棟
UNUS.白金長者丸 1F号室
東京都品川区上大崎2丁目9-23
最近見た物件
パークハウス渋谷山手 10F号室
東京都目黒区青葉台4丁目4-2



