青山第一マンションズ 1103号室
物件概要
物件名
青山第一マンションズ 1103号室
所在地
東京都港区赤坂8丁目4-10
賃料
68万円
管理費 / 共益費
0円
敷金
272万円
礼金
0円
仲介手数料
入居時期
相談
契約期間
交通
築年月
2003年9月
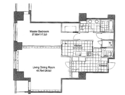
間取り
1LD
所在階 / 階建
バルコニー面積
建物構造
PC
広さ
119.10㎡
向き
東
現況
空室
設備仕様
キッチン
ガスコンロ対応、給湯、システムキッチン
バス・トイレ
シャワー、温水洗浄便座、洗濯機置場、洗面所独立
セキュリティ
防犯カメラ、TVモニタ付インターホン
ペット
ペット相談
設備
不明コード(20601)、プロパン、エアコン、CSアンテナ、BSアンテナ、CATV、不明コード(22801)、不明コード(23401)、光ファイバー、南向き、楽器相談可、事務所使用可、不明コード(10903)、定期借家、仲介手数料不要
共用設備
エレベーター
駐車場
駐輪場、駐車場空きあり
保険
備考
月額給湯料18700円(月額) 空調料28600円(月額) 内覧予約受付中。即日対応・現地集合OK。事前申込みで物件を確保し、内覧後のキャンセルも可能です。キャンセル費用不要。契約金はクレジットカード決済対応。
周辺地図
他にも多数の物件を取り揃えております 。お気軽にお問い合わせください。
条件の近い物件
パークタワー西新宿 38F号室
東京都新宿区西新宿5丁目6-1
THE ROPPONGI TOKYO CLUB RESIDE 18F号室
東京都港区六本木3丁目7-1
ザ・パークハウス西新宿タワー60 2201号室
東京都新宿区西新宿5丁目5-1
ザ・パークハウス戸越公園タワー 6F号室
東京都品川区戸越5丁目19-1
ザ・パークハウス駒沢レジデンス 204号室
東京都世田谷区駒沢3丁目27-9
パークタワーグランスカイ 34F号室
東京都品川区東五反田2丁目10-1



